Geothermie-Grossprojekte

Vorteile der energetischen Sanierung mit Erdwärmesonden

Im Rahmen der Klimaschutzziele werden energetische Sanierungen in der BRD gefördert, um den CO2-Ausstoß zu senken.

Gerade im Altbestand mit oft sehr fragwürdigen Energieeffizienzklassen, ist durch den Schichtaufbau der thermischen Hüllfläche in Kombination mit alter Anlagentechnik ein entsprechendes Energieeinsparpotential gegeben.

Das Ziel der Umwelt weniger CO2 zuzuführen wird durch geringeren Energieverbrauch erreicht.

Trotz Förderanreize wird von den Möglichkeiten der energetischen Sanierung nicht in dem Maße Gebrauch gemacht wie von der Bundesregierung gewünscht.

Witzlebenstr. 65/67 Celle I; Frühjahr 2013
Vor der Sanierung

Das Objekt aus dem BJ 1966 mit 3 Vollgeschossen und 2 Eingängen, mit insgesamt 12 Wohneinheiten, soll auf KfW-115 Standard saniert werden um es auch für die nächsten Jahre für Mieter attraktiv zu gestalten.

Von Seiten der Kreditanstalt für Wiederaufbau wird die energetische Sanierung zum Effizienzhaus mit 75.000,-€ pro Wohneinheit gefördert.

Für die 12 Wohneinheiten im Bestand ist also eine maximale Förderung von 900.000,-€ möglich.

Die Berechnungen durch den Energieberater ergeben ein Sanierungsvolumen von z.B. 450.000.-€ um das Objekt nachhaltig energetisch zu Sanieren.

Die Hausbank ist zwar nur das durchleitende Institut zur KfW, gleichzeitig aber auch der Besicherer der Immobilie.

Weil das Objekt nicht Schuldenfrei ist, kann die Bank gemäß der Beleihungs-Wert-Verordnung nur ein Kreditvolumen von 250.000,-€ gewähren, mit welchem das Erreichen des KfW-Standard dann aber nicht möglich ist.

Witzlebenstr. 65/67 Celle I; Juli 2014
Nach der Sanierung kurz vor Fertigstellung der Außenanlage

In der Regel ist hier der Grund zu finden, weshalb die Möglichkeiten zur Förderung von energetischen Sanierungen nicht wie von der Regierung gewünscht umgesetzt werden.

Setzten wir einfach Voraus dass der Bauherr einen Weg gefunden hat die „fehlenden“ 200.000,-€ zur Verfügung zu stellen um dennoch zu sanieren.

Dann ergibt sich folgendes Bild der Immobilie

Das Objekt erstrahlt nach der energetischen Sanierung im neuen Glanz.

Bauherr, Architekt, Energieberater und alle beteiligten Firmen feiern das Ergebnis und den geringeren CO2-Ausstoß.

Was ist passiert?

Durch das Anbringen eines WDVS-Systems und einer Sparrendämmung wurden die Transmissionswärmeverluste erheblich verringert.

Desweiteren wurde im Bereich des Treppenhauses eine großzügige, moderne Verglasung eingebaut, welche das Gebäude noch ansprechender gestaltet.

Bedingt durch diese Maßnahmen sinkt der Gebäudeenergiebedarf des Hauses, wodurch sich auch der CO2-Ausstoß vermindert.

Die Investitionskosten werden mit 11% gemäß BGB 559 auf den Mieter umgelegt, so dass die Investition für den Eigentümer nach 9,14 Jahren ausgeglichen ist und dann einen Gewinn in entsprechender Höhe generiert wird.

Der Mieter wird daher mit einer höheren Kaltmiete belastet.

Mann weist in diesem Zusammenhang gerne darauf hin,
dass diese Kaltmieterhöhung ja durch geringere Energiekosten abgefedert werden.

Was ist wirklich passiert?

Alles was zu der energetisch sanierten Immobilie gesagt wurde stimmt,
ist aber leider nur die halbe Wahrheit!

Denn sofern bei der Sanierung die Anlagentechnik zwar mit erneuert wurde aber immer noch auf fossilen Energieträgern beruht, ergibt sich folgendes Bild.

Durch die verminderten Transmissionswärmeverluste sinkt der Bedarf an Brennstoff,
die Energiekosten sinken also im Vergleich zu der unsanierten Immobile.

Da die fossilen Energieträger jedoch erheblichen Preissteigerungen unterworfen sind,
bei Öl ca. 20% und Gas ca. 12% p.a., werden die eingesparten Energiekosten bereits nach kurzer Zeit durch den Preisanstieg aufgezehrt.

Im Klartext werden die Energiekosten bei Öl bereits nach 5 Jahren, bei Gas nach ca. 9 Jahren wieder genauso hoch sein wie vor der Sanierung.

Der zuvor errechnete Nutzen der Sanierungsmaßnahme ist nicht gegeben,

die gesetzliche Kaltmietbremse ist wirkungslos!

Der Vermieter schaut in erster Linie nur auf seine Rendite, also die Kaltmiete, und betrachtet die Energiekosten als durchlaufende Position mit Verwaltungsaufwand.

Er denkt heute leider immer noch, dass Ihm der Energiepreisanstieg egal sein könnte.

Auch große Wohnungsgesellschaften sehen dies ähnlich und verkennen die Situation, denn es handelt sich bei den Energiekosten nur dann um eine durchlaufende Position, solange der Wohnraum auch vermietet ist.

Denn der Mieter schaut aufgrund seines Gehaltes nur auf die Warmmiete.

Ihm ist es egal wie nahe die sanierte Wohnung am Kindergarten und Schule oder Arbeitsplatz liegt, er muss die Miete inklusive der Energiekosten bezahlen können.

Werden die Gesamtkosten der Wohnung zu hoch, wird er ausziehen müssen.

Die Folge ist Leerstand und mittelfristig im ungünstigsten Fall der Zusammenbruch der Finanzierung aufgrund fehlender Mieteinnahmen.

Viele Kommunen haben jedoch aufgrund der Anzahl der von Ihnen zu finanzierenden Transferleistungsempfänger, für die Sie auch den Wohnraum und die Energiekosten zahlen müssen, bereits erkannt dass Sie durch den Sachverhalt der kontinuierlich ansteigenden Öl- und Gaskosten erheblich belastet werden.

Das Ziel einer jeden energetischen Modernisierungsmaßnahme im Altbestand
muss es demnach sein, eine auf regenerativen Energieträgern beruhende Anlagentechnik zu installieren!

Energetische Sanierung mit EWS-Wärmepumpe

Aktuell verfügen wir über eine Vielzahl technischer Möglichkeiten die Anlagentechnik mit regenerativen Energien zu unterstützen.

Mittels Wärmepumpen kann die Anlagentechnik sogar vollständig über regenerative Energien für Heizung und Warmwasserbereitung gedeckt werden.

Hierzu entziehen die Wärmepumpen der Umwelt ca. 80% des vom Gebäude benötigten Energiebedarfs und 20% werden über elektrische Energie gedeckt.

Dabei ist die Effektivität der Wärmepumpe umso größer, je geringer der Temperaturhub ist!

Da im Untergrund ganzjährig nahezu gleichbleibende Temperaturverhältnisse herrschen, erachte ich die Sole/Wasser-Wärmepumpe als die sinnvollste Alternative die Anlagentechnik energetisch effektiv auf erneuerbare Energien umzustellen, obwohl sie
wegen der zusätzlichen Kosten für die benötigten Erdwärmesondenfelder unbestritten Kostenintensiv ist.

Tatsächlich handelt es sich um die Anlagentechnik mit den größten Investitionskosten.

Das mehr an Investitionskosten wird aber durch die ganzjährig niedrigen Energiekosten im Betrieb relativiert.

Zur Errichtung einer effizienten Geothermie Anlage müssen für drei Teilbereiche umfangreiche Berechnungen durchgeführt werden:

a) Gebäudeenergiebedarf
b) Auslegung der Anlagentechnik und des EWS-Feldes für den Spitzenlastfall
c) Geothermische Ergiebigkeit am Objektstandort/ EWS-Felddimensionierung

Da die Effektivität von Wärmepumpen bei möglichst geringem Temperaturhub am größten ist, sind bei Fußbodenheizung mit Heizkreistemperaturen von HV/HR 35°/28°
optimale Bedingungen gegeben.

Bei der Sanierung von Bestandsimmobilien muss in der Regel mit freien Heizflächen gearbeitet werden.

Hier sind die Heizkreistemperaturen auf HV/HR 55°/48° bei gleichzeitigen hydraulischen Abgleich zu begrenzen, damit die Jahresarbeitszahl der Wärmepumpe nicht zu gering wird.

Eine hohe Jahresarbeitszahl ß der Wärmepumpe ist deshalb wichtig, weil Strom ein Edelenergieträger ist.

Beispiel:

Ein Liter Öl hat eine Heizleistung von 10kWh und kostet ca. 85cent

Um die gleiche thermische Energie über eine Wärmepumpe mit der Jahresarbeitszahl
ß = 4 dem Objekt zur Verfügung zu stellen, benötigt man jedoch 2,5kWh elektrischer Energie.

Ausgehend vom einem Strompreis von 27cent/kWh müssen also 67,5cent hierfür aufgewendet werden.

Nun stellen Sie sicher die Frage, weshalb sich der ganze Aufwand bei einer Kostenersparnis von „nur“ 17,5cent im Vergleich zu einem Liter verheizten Heizöl lohnen sollte.

Die Antwort ist ganz einfach.

Sie entkoppeln Ihre Energiekosten von den immensen jährlichen Preissteigerungen der fossilen Energieträger und stellen Ihre Anlagentechnik auf nur mit geringen Preisaufschlägen behafteten elektrischen Strom um.

Denn im Gegensatz zu sich verknappendem Öl, das nur dann billiger wird wenn die Isis zur Finanzierung Ihres Krieges mit Öl den Markt überschwemmt, ist der Strompreis in Deutschland ein politischer Preis mit einer maximalen Steigerung von 3%.

Beispiel an konkreten Zahlen

Eine 80m² große Wohnung mit einem Energiekennwert von 160kWh/m²a
hat einen Energiebedarf von 12.800kWh im Jahr.
Da gemäß Faustformel der dena, 1 Liter Öl einem Heizwert von 10kWh entspricht,
ergibt das einen Verbrauch von 1.280 Liter Öl pro Jahr.
Eingekauft mit 85 cent/Liter ergeben sich Kosten von 1.088€/a bzw. 90 €/Monat.

Setzt man voraus, dass die aktuelle Preissteigerung von ~20% in den letzten Jahren trotz zunehmender Verknappung des Rohstoffes auch die nächsten 20 Jahre nur bei 20% liegt und an der Substanz des Gebäudes nichts verändert wird,

hätte man nach 20 Jahren insgesamt 203.117€ verheizt !!!!!

Von den o.g. 12.800kWh werden durch die erneuerbare Erdwärme 80% gedeckt,
so dass 2.560kWh elektrischer Antriebsenergie von der Wärmepumpe für die gleiche Wohnung benötigt werden.
Es werden also Kosten von 691,2€/a bzw. 57,6€/Monat anfallen.

Ausgehend von einem Strompreis von 27cent/kWh und einer gleichbleibenden Preissteigerung von 3%

hätte man nach 20 Jahren insgesamt 18.573€ an Energiekosten gezahlt !!!!!

Hieraus ist ersichtlich, dass das mehr an Investition in eine Wärmepumpe mit Erdwärmesonden sich dauerhaft durch günstige Betriebskosten rechnet.

Dieser Effekt gibt dem Mieter zudem eine größere Planungssicherheit bezüglich der Energiekosten.

Das zahlt sich für den Vermieter ebenfalls aus, denn er wird auch noch in einigen Jahren Mietraum zu vernünftigen „Warmmietpreisen“ anbieten können,
was nämlich das ist worauf seine Mieter schauen.

Die Zahl die er als Mieter unter dem Strich pro Monat bezahlen muss.

Kommunen mit hohen Ausgaben für Energiekosten der Transferleistungsempfänger unterstützen daher gerne Bemühungen die Anlagentechnik auf Erdwärme umzustellen,

um bereits nach kurzer Zeit durch die Entkoppelung der Wohnungsenergiekosten von den Preissteigerungen fossiler Brennstoffe entlastet zu werden.

Auch bei der energetischen Sanierung mit Erdwärmesonden können die Investitionskosten mit 11% gemäß BGB 559 auf den Mieter umgelegt werden.

In diesem Fall sind jedoch die Kosten der Energieeinsparung
dauerhaft und planungssicher.

Fazit

Es wurde gezeigt, dass die energetische Sanierung dann nicht sinnvoll ist, solange die Anlagentechnik weiterhin mit fossilen Energieträgern arbeitet.

Erst die Umstellung der Anlagentechnik auf Wärmepumpe mit Sole-Wasser-Betrieb entkoppelt die Energiekosten energetisch sinnvoll, dauerhaft und langjährig von den Energiepreissteigerungen fossiler Brennstoffe und ermöglicht langfristig planbare niedrige Energiekosten für Vermieter und Mieter.

Konsequenz

Eine Gruppe kluger Menschen hat auf Grund dieser Faktenlage die Zahlen analysiert, nachgerechnet und bewertet.

Als Folge dessen wurde die Deutsche Geothermische Immobilien AG gegründet.

Aufgrund der Eindeutigkeit der Ergebnisse Ihrer Analysen geht diese Aktiengesellschaft noch einen Schritt weiter,
um die Umwelt bei der energetischen Sanierung durch verminderten CO2-Ausstoss zu entlasten
und gleichzeitig die Investitionskosten sozialverträglich,
ohne Anwendung des § 599 BGB, auf die Mieter umzulegen.

Hierzu bedient sich die AG des Vehikels der sogenannten “Flatrate“TM.

Dabei handelt es sich um nichts anderes als einer auf den aktuellen Energiekosten basierenden Nutzungsentgeldvereinbarung dafür,
dass der Eigentümer den auf seinem Grund befindlichen Bodenschatz Erdwärme dem Mieter für den Betrieb der Anlagentechnik dauerhaft für planbare Energiekosten zur Verfügung stellt.

Ermittelt wird die Höhe der „Flatrate“TM auf Grundlage der aktuellen Energiekosten des jeweiligen Mieters.

Durch diese Vereinbarung werden die Kosten der energetischen Sanierung gedeckt, ohne dass der Mieter mit einer Kaltmieterhöhung konfrontiert wird.

Er hat im Vergleich zu seiner aktuellen „Warmmiete“ lediglich das elektrisch bedingte mehr welches durch den Betrieb der Wärmepumpe bedingt ist zu entlohnen.

Nach wie vor zahlt er den gleichen Betrag für die Kaltmiete und die Höhe seiner ehemaligen Energiekosten wurde in die „Flatratevereinbarung“ umgewandelt.

Als Kostensteigerung hat er nur Anteilig die Kosten der elektrischen Antriebsenergie der Wärmepumpe zu zahlen
und diese Position ist weit geringer als das Umlegen der Sanierungskosten nach BGB.

Pilotprojekt der DGI AG

Im Herbst 2012 wurde Herrn Trautsch, dem späteren CEO der DGI AG, ein Portfolio in Niedersachsen angeboten.

Es handelte sich dabei um 76 Hauseingänge mit 382 Bestandswohnungen und 26.460m² Wohnfläche bei 96.636m² Grundfläche mit zumeist 2- und 3-geschossiger Bebauung, aufgeteilt auf drei Clusterstandorte in Rotenburg (Wümme) bei Bremen und Celle bei Hannover sowie zwei Einzelobjekte in Rotenburg.

Eine Analyse der Energiekosten ergab, dass sich die sozialverträgliche Umstellung der Energiekosten auf die Flatrate zur Finanzierung der Sanierungskosten rechnet.

Ebenfalls war aufgrund der vermieteten Wohnfläche, der Geschossigkeit und der Grundfläche ersichtlich, dass mit der an den Objektstandorten herrschenden geothermischen Ergiebigkeit die Gebäude mit Erdwärme versorgt werden können.

Somit erfolgte eine ausführliche Objektbegehung, um eruieren zu können mit welchem baulichen Aufwand die Gebäude gedämmt werden müssten um mit möglichst geringen Bohrmetern die Häuser mit Erdwärme zu versorgen.

Bei der Berechnung des Gebäudeenergiebedarfs wurde dem Wunsch des Auftraggebers dahingehend entsprochen, den bis dato ungenutzten Spitzboden mit in die thermische Hüllfläche zu integrieren, damit dort 125 neue Dachgeschosswohnungen geschaffen werden konnten.

KfW-Effizienzeinstufung, exemplarisch

Die Objekte wurden mit einer von der dena und KfW zugelassenen Software
berechnet, dessen Rechenkern vom Fraunhofer Institut für Bauphysik entwickelt wurde.

Die dem Rechenkern zugrunde liegenden Parameter decken zu 98% der Fälle die realen Gegebenheiten bei standardisiertem Nutzerverhalten und normaler Klimaganglinie am jeweiligen Objektstandort ab.

Aufgrund der gewählten Sanierungsvorgaben zur Eindämmung der Transmissions-wärmeverluste und der auf Wärmepumpe mit Erdwärmesonden basierenden Anlagentechnik wurden die Gebäude von der Energieeffizienzklasse „G“ auf die Effizienzklasse „A+“ aufgewertet.

Der Vorgabe die Objekte zu KfW-förderfähigen Häusern zu sanieren wurde selbst bei ungünstigen Kompaktheitsverhältnissen eingehalten.

Die Berechnung des Gebäudeenergiebedarfs der sanierten Gebäude über den Jahresgang diente als Grundlage für die Auslegung der Größe der Anlagentechnik und des EWS-Feldes pro Objekt im Spitzenlastfall.

KfW-Effizienzeinstufung, exemplarisch
Jährlicher Gebäudeenergiebedarf

Hieraus resultierten die ersten Überlegungen zur Umstellung des Portfolios auf Erdwärme basierende Anlagentechnik.

Daraufhin wurden erste Angebote eingeholt, Kostenschätzungen erstellt und Gespräche mit Banken geführt.

Weil bis zu diesem Zeitpunkt Banken, welche prinzipiell konservativ bei der Finanzierung denken, lediglich Geothermieprojekte für einzelne Gebäude finanziert hatten, war eine weitergehende Analyse des Konzeptes für die Umstellung eines ganzen Portfolios auf Erdwärme notwendig.

Das technische und geschäftliche Konzept der DGI AG wurde durch unabhängige Sachverständige erneut nachgeprüft.

Nachdem auch diese Hürde genommen, wurden im Dezember 2013 die KfW-Anträge gestellt.

Aufgeteilt auf die drei Clusterstandorte, wurden 52 Anträge für das Programm 151- energetisch Sanieren – für die Bestandswohnungen und 50 Anträge für das Programm 153 – Energieeffizient Bauen – für die Errichtung der 125 neuen Dachgeschoss-wohnungen gestellt.

Auf Wunsch der Bank wurden diese Fördergelder jedoch nicht abgerufen, da die Bank nach eigener Aussage den hiermit verbundenen Verwaltungsaufwand nicht bewältigen konnte.

Die Förderung des Bundes für energetische Sanierung zur Senkung des CO2-Ausstoßes, ist für Projekte dieser Größenordnung nicht ausgelegt!

im hier vorliegenden Fall werden 1,2 Mio. kg CO2 pro Jahr eingespart,

Dies gilt sowohl für Förderungen durch die KfW, als auch für die BAFA.

Denn es ist für Großprojekte dieser Art nicht Möglich erst nach der BAFA-Bewilligung Verträge mit ausführenden Firmen zu schließen, sich günstige Rabatte durch Großbestellungen der Wärmepumpen zu sichern und innerhalb des maximalen BAFA-Förderzeitraums von 12 Monaten 103 Anlagen inklusive hydraulischem Abgleich zu installieren, während gleichzeitig 25.300m Erdwärmesonden gebohrt werden.

Doch nur mit derartigen Großprojekten können die gewünschten Energie- / CO2-Einsparungen der Regierung bis 2020 erreicht werden.

Durch Notarsvereinbarung wechselte das Portfolio am 15.01.2014 den Besitzer.

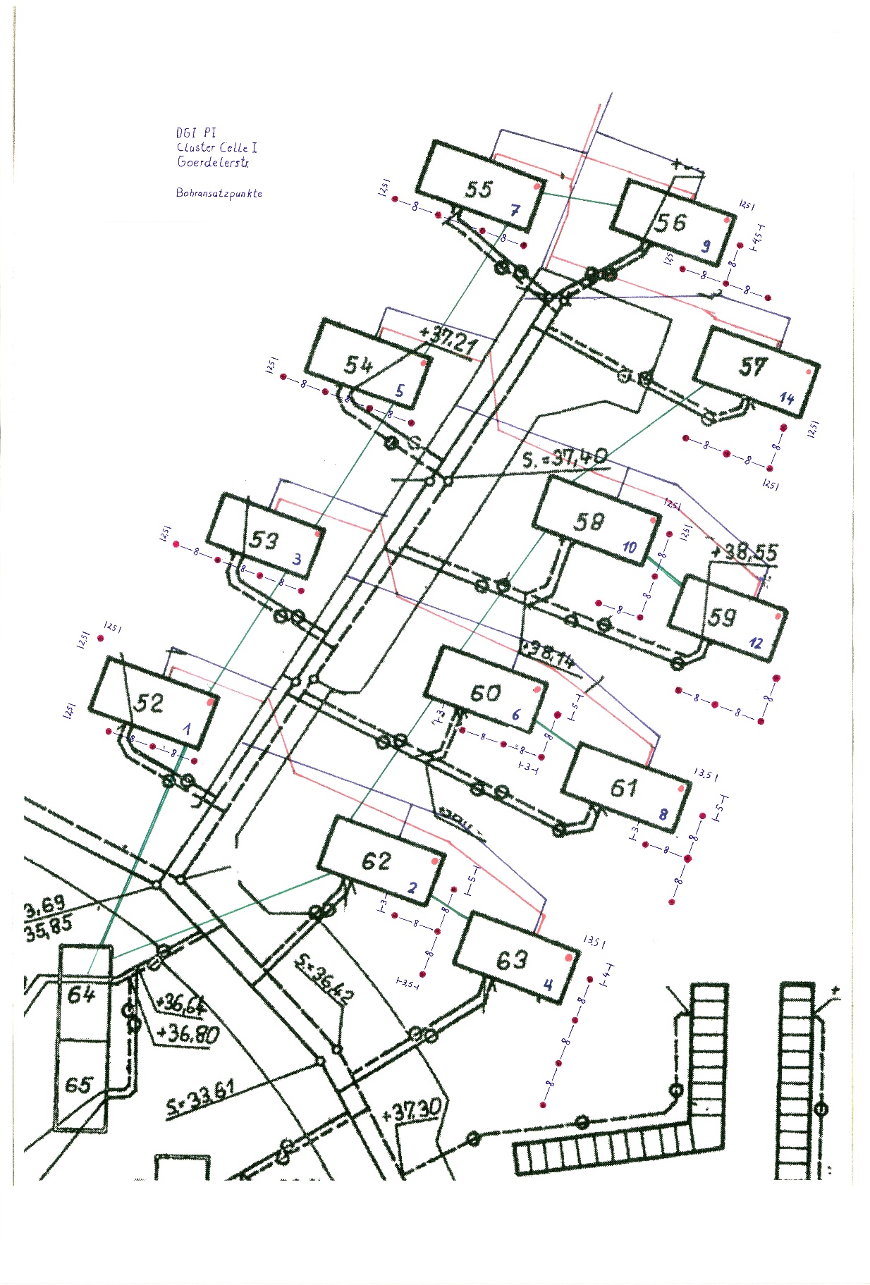
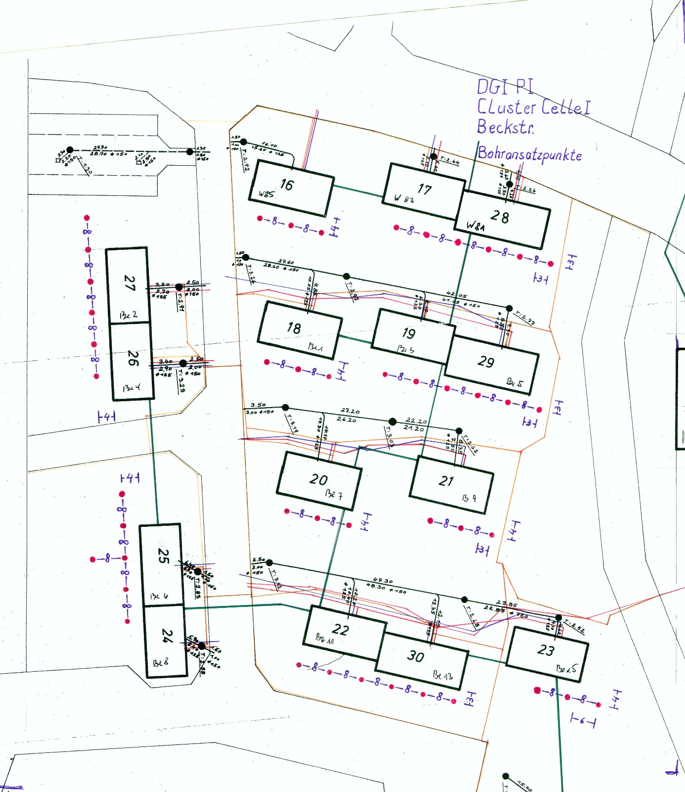
Bereits während der Planungsphase in 2013 wurden wegen der Vielzahl der in räumlicher Nähe zueinander angeordneten EWS-Felder der Kontakt zu den jeweiligen unteren Wasserbehörden und dem LBEG hergestellt,

Deshalb wurde bereits am 16.01.2014 mit den Bohrungen zu den behördlich geforderten Pilotbohrungen für die Geothermal Response Test (GRT) und Enhanced-GRT begonnen

Für die 52 EWS-Felder in ROW und Celle waren 2 GRT und 2 EGRT sowie 2 Grundwassermessstellen in ROW zur Bestimmung des Wasserstandes gefordert.

Dabei wurden aber kleinräumige Veränderungen festgestellt.

Um die ordnungsgemäße Funktion aller geplanten 276 Sonden der 52 EWS-Felder gewährleisten zu können, wurden an jedem Objekt mindestens 2 Bohrungen durchgeführt um anhand der Schichtenprofile die Feldauslegung verifizieren zu können.

Aktuell gibt es keine Software mit welcher die Energieentnahme aus dem Untergrund für eine Vielzahl von nebeneinander liegenden EWS-Feldern möglich ist.

Dies gilt umso mehr, wenn es sich um unterschiedliche Gebäudeenergieprofile und Sondengeometrieen nebeneinander handelt, wie hier vorliegend.

Aus Gründen der Betriebssicherheit wurden die Clusterstandorte in Berechnungszonen aufgeteilt und sowohl für jedes Energieprofil innerhalb der Berechnungszone als auch für die Summe aller dort geteuften Sonden eine Untergrundsimulation durchgeführt.

Wegen der oben bereits angesprochenen räumlichen Nähe der EWS-Felder wurde im Verlaufe der Bohrarbeiten behördlicherseits eine 3D-Simulation des Untergrundes für unterschiedliche Schichten entlang der Bohrstrecke gefordert.

So konnte Belegt werden, dass nachbarschaftliche Interessen durch den Betrieb der Anlagen nicht tangiert werden

Temperaturabweichung

Das Bild zeigt die Temperaturabweichung zum ungestörten Untergrund im Cluster Celle I bei einer
Schichttiefe von 35m unter Berücksichtigung des Grundwasserflusses

Wegen Änderungen an Gebäuden und aufgrund der kontinuierlichen Schichtauswertung der Probebohrungen an den Objekten, konnte die Bohrstrecke auf 253 Sonden a 99m reduziert werden.

Für 181 Sonden mussten die Bohransatzpunkte durch den Kampfmittelräumdienst freigegeben werden.

Ab Ende März wurde mit dem Anbringen des WDVS-Systems begonnen.

Es wurden in Rotenburg und den noch nicht gedämmten Objekten in Celle I auf der Witzlebenstr. und Beckstr. insgesamt 21.000,- m² verarbeitet.

Am 29.07.2014 wurden die ersten Objekte im Beisein von Bankenvertretern, Oberbürgermeister und Herrn Jensen vom Landesamt Bergbau, Energie und Geologie auf Wärmepumpenbetrieb mit Dimplex-Aggregaten umgestellt.

Im Portfolio „Niedersachsen“ wird die Energieversorgung durch zwei parallel betriebene Anlagen sichergestellt.

Ganzjährig arbeiten die WW-Hochtemperaturpumpen.

Bei Spitzenentnahmezeiten senkt sich die Temperatur in den WW-Pufferspeichern ab und wird durch die Flanschheizkörper auf die gesetzlich vorgeschriebene Mindesttemperatur angehoben.

In der Heizperiode gehen die Heizungsaggregate in Betrieb.

Deren Zusatzheizkörper werden so Programmiert dass diese nicht in Betrieb gehen.

Damit kann bei einer Störung der Anlage sichergestellt werden, dass die erforderliche Heizungsenergie nicht ausschließlich durch die Zusatzheizkörper bereitgestellt wird.

Störungen im Anlagenbetrieb der Heizungswärmepumpen werden so direkt erkannt.

Wird innerhalb einiger Spitzenlasttage während der Heizperiode zusätzliche Energie für den Heizkreis benötigt, unterstützten die auf Vorrang geschalteten WW-Wärmepumpen die Heizungsaggregate.

Mit der Glen Dimplex GmbH wurden aktiv die technischen Grenzen der Aggregate für das jeweils geforderte Energieprofil aller 52 Heizkreise erarbeitet, um die technischen Möglichkeiten der verbauten WP nicht zu überschreiten.

So konnten auch entsprechende Berechnungen durchgeführt werden mit welchen nachgewiesen wurde, dass die durch die BaFa geforderten Jahresarbeitszahlen von
Mindestens ß = 3,8 eingehalten werden.

Je nach Kompaktheitsverhältnis werden mit den installierten Anlagenkombinationen Jahresarbeitszahlen von 3,8 bis 4,1 erreicht.

Anlagentechnik Beckstr. 3/5 Cluster Celle I; SI35TU und SIH11TE

Aktuell wurden 40 Wärmepumpen in Betrieb genommen (Stand 19.12.2014).

Diese versorgen in 20 Objekten insgesamt 198 Wohneinheiten mit Heizungsenergie und Warmwasser.

Bezogen auf alle Bestandswohnungen und geplanten neuen Dachgeschossausbauten, entspricht dies einem Leistungsstand von 38%

Gemäß der aktuellen Planung werden bis Juni 2015 alle 52 Heizkreise im Betrieb sein.

Technische Daten zum Pilotprojekt

 Rotenburg   

 28 Wärmepumpen  für  14 Heizkreise
 mit 437,0 kW Anlagenleistung insgesamt
 72 Sonden;   734,4 MWh/a jährlich entnommener Wärmeenergie

 Celle I          

 53 Wärmepumpen  für  27 Heizkreisen  (Beckstraße 18 wird nur beheizt)
 mit 644,8 kW Anlagenleistung insgesamt
 131 Sonden;   1.310,9 MWh/a jährlich entnommener Wärmemenge    

 Celle II        

 22 Wärmepumpen  für  11 Heizkreise 
 mit 326 kW Anlagenleistung insgesamt
 50 Sonden;   516,0 MWh/a jährlich entnommener Wärmeenergie
Der Verfasser beim Einbau einer Sonde mit Hybridsensorkabel für eine EGRT-
Messung der Wärmeleitfähigkeit des Untergrundes

Schlussbemerkung:

Die letzte der über 100 Wärmepumpen wurde Mitte Juli 2015, einen halben Monat Später als zu Projektbeginn im April 2014 geplant, in Betrieb genommen.

Die Fertigstellung der letzten Dachgeschossausbauten erfolgte fristgerecht zum 15.12.2015

Die beantragten BaFa-Mittel zur Förderung des Projektes wurden zugeteilt.

Zwei Bohrgeräte arbeiten zeitgleich; Haus Witzlebenstr. 73/75 Cluster Celle I

Zum Erkenntnisgewinn der Untergrundverhältnisse bei räumlich nebeneinanderliegenden Erdwärmesondenfelder von ganzen Straßenzügen, wurde durch das Landesamt Berg-bau, Energie und Geologie in Niedersachsen ein Monitoring für das Projekt gefordert.

Die bei der genehmigenden Landesbehörde eingereichten Monitoringberichte belegen die Effizienz der geplanten Maßnahme durch Datensätze aus dem laufenden Betrieb mit Jahresarbeitszahlen (JAZ) der Wärmepumpen von bis zu 3,9 im Jahresmittel

50170 Kerpen, den 09.03.2017